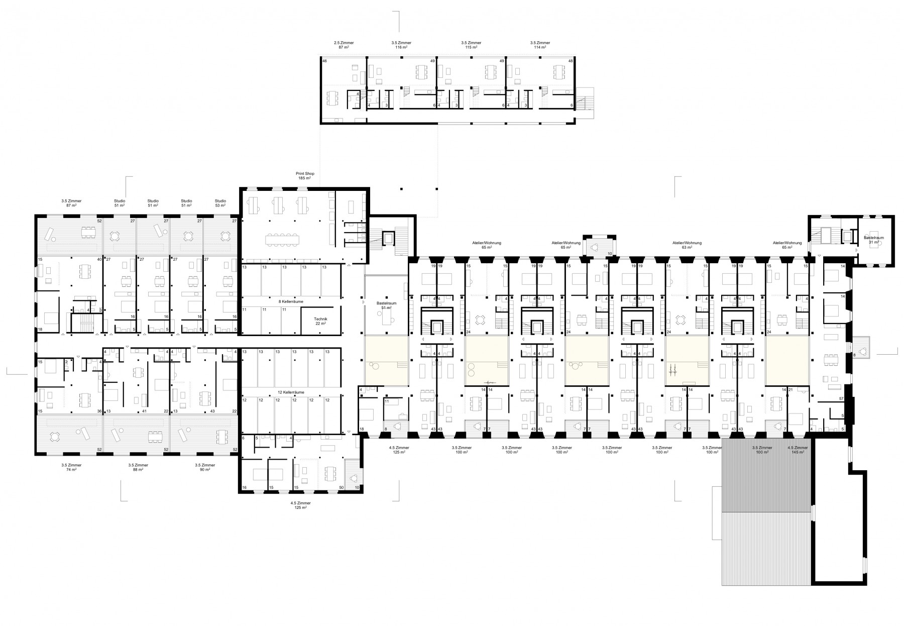
Umnutzung Spinnerei Hermann Bühler Mülau
Aufgrund der Einstellung des Traditionsbetriebs im 2016 soll das weitläufige Areal einer neuen Nutzung zugeführt werden. Die Transformation beinhaltet sowohl die Umnutzung der Liegenschaften als auch die Neugestaltung der Aussenräume. Die Inszenierung der Industriearchitektur ist der Ausgangspunkt des architektonischen Konzepts und bleibt identitätsstiftendes Merkmal. Über eine „Rue Intérieure“ und Lichthöfe bleibt die Grossmassstäblichkeit auch im Innenbereich lesbar und erinnert an die Firmengeschichte. Neben Gewerberäumen und Ateliers entstehen mittels gezielter Eingriffe in die Gebäudestruktur insgesamt 86 unterschiedliche Wohnungen. Die Qualitäten des bestehenden Aussenraums werden zu einem zentral verbindenden Element des Zusammenlebens weiterentwickelt.
Veranstalter / Auftraggeber:
Hermann Bühler AG
Adresse:
Mülau 12, 8482 Sennhof
Termine:
2018
Auftragsart:
Eingeladener Studienauftrag
Zusammenarbeit:
Klötzli Friedli Landschaftsarchitekten AG Bern