• Projekte
  • Wettbewerbe
  • Archiv
  • Büro
    • Philosophie
    • Geschichte
    • Team
    • Publikationen
    • Stelle
  • News
  • Kontakt
  • Impressum

Projektbeschrieb

  • vorheriges Projekt
  • nächstes Projekt

Planerwahl Instandsetzung Herman-Greulich-Str. 70

Das heutige dermatologische Ambulatorium an der Herman-Greulich-Strasse 70 gehört zum Stadtspital Triemli und wird Anfang 2023 an den neuen Standort im Triemlispital umziehen.
Künftig sollen Zweigstellen des Schulärztlichen und Schulpsychologischen Dienstes, sowie verschiedene Kinder- und Jugendfachstellen untergebracht werden.

 

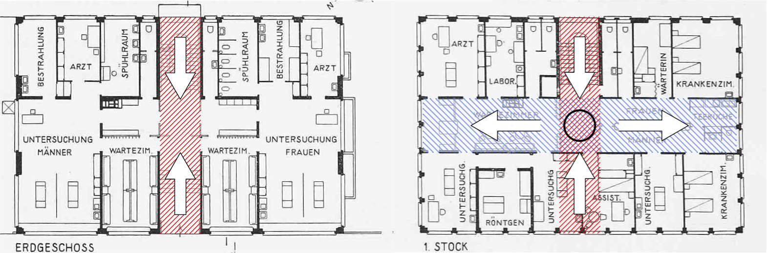
Grundrissstruktur

Der ursprüngliche Grundriss weist eine klare zweigeteilte Erschliessungsstruktur auf, welche die städtische Polyklinik nach Geschlechter in zwei Hälften aufteilt. Der dunkelgrüne Kunststein-Bodenbelag im Treppenhaus unterstreicht die klare Gliederung.

In zweiter Hierarchie spannt sich die Mittelzone, welche alle gemeinschaftlichen  Nutzungen beherbergt, über die ganze Gebäudebreite.

Neue Nutzung - klare Raumstruktur

Die neuen Nutzungsanforderungen rücken von der ursprünglich gedachten Zweiteilung ab und sehen mehrere schulgesundheitliche Dienste vor. Die geschlechtsspezifische Trennung ist dabei nicht mehr Thema.

Mit der Instandsetzung soll die  klare Gebäudegliederung herausgearbeitet, und  auf die neuen Nutzungen abgestimmt werden: Die publikumsorientierte Mittelzone wird geschossweise als Ganzes erlebbar gemacht, nichttragende Zwischenwände werden entfernt und -wo nötig- durch Glasabschlüsse ersetzt. Damit wird Tageslicht in das aktuell dunkle Gebäudezentrum geholt.

Ausbau-und Farbkonzept

Mit den Ausbaumassnahmen in der Mittelzone werden die spezifischen Funktionen Empfang, Warten, Aufenthalt, integral gelöst.  Mittels Ausformulierung einer raumhaltigen Schicht (Garderobe im Empfang / Kochzeile im Aufenthaltsbereich / Verkleidung Liftschacht und Steigzonen), der Platzierung einzelner Einbauten (Empfangstheke / Sitzbänke / Staumöbel) sowie der Applikation entsprechender Bodenbeläge und Farbe wird eine zusammenhängende Raumfigur geschaffen welche zum Thema der Publikumsbereiche auf allen Geschossen gemacht wird.

Das helle Gelb ist der bauzeitlichen Farbgebung (Plattenbeläge, Medizinalmobiliar) nachempfunden und ergänzt die mattgrünen Zirkulationsflächen, welche sich an den dunklen Kunststeinbelag im Treppenhaus anlehnen.

Deckensegel als Installationszone

Mit der Instandsetzung soll neu eine mechanische Lüftungsanlage realisiert werden. Idealerweise wird  die Zentrale im Dachraum eingebaut und die Luft mittels Hauptsteigzonen je Gebäudeflügel auf die Geschosse verteilt. Die geschossweise Verteilung erfolgt in der Mittelzone über dem Deckensegel und wird mittels kombinierten Zu- und Abluftgittern direkt in die einzelnen Räume gebracht.

 

 

Veranstalter / Auftraggeber
Stadt Zürich, Amt für Hochbauten

Adresse
Herman-Greulichstrasse 70, 8004 Zürich

Termine
2022

Auftragsart
Planerwahl im selektiven Verfahren

Zusammenarbeit
WAM Planer und Ingenieure AG
Amstein & Walthert Bern AG
Raumanzug GmbH, Zürich

 

 

 


 

 

 

Um unsere Webseite für Sie optimal zu gestalten und fortlaufend verbessern zu können, verwenden wir Cookies. Durch die weitere Nutzung der Webseite stimmen Sie der Verwendung von Cookies zu. Weitere Informationen zu Cookies erhalten Sie in unserer Datenschutzerklärung.